서초로이움지젤 신축공사 건축물미술작품 실적
페이지 정보

본문
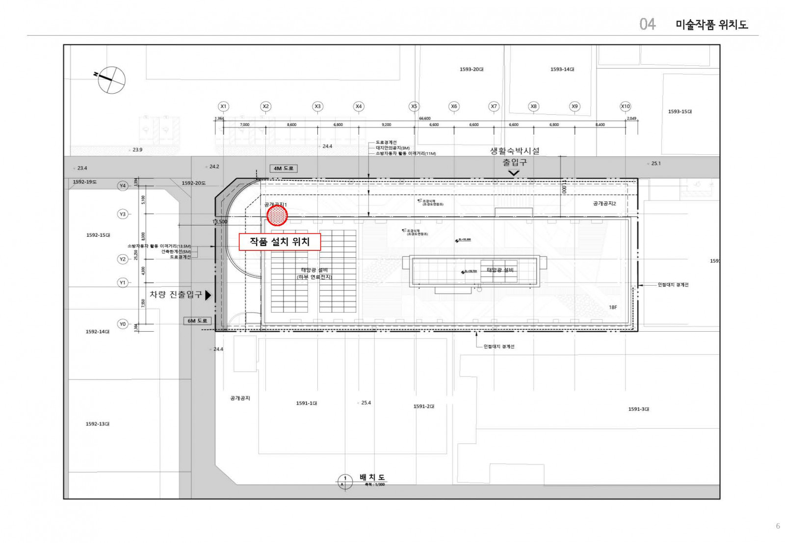
| 대지위치 | 서초동 1591-6 |
|---|---|
| 대지면적 | 1,954.20㎡ |
| 건축면적 | 1,156.83㎡ |
| 연면적 | 17,976.43㎡ |
| 규모 | 지하 5 층/지상 18 층 |
| 구조 | RC조+벽식 |
| 건축주 | 더지젤 |
| 조형물 | |
| 작품크기 | |
| 가격 |
- 다음글청라호수공원프라자 신축공사 건축물미술작품 실적 25.07.26

| 대지위치 | 서초동 1591-6 |
|---|---|
| 대지면적 | 1,954.20㎡ |
| 건축면적 | 1,156.83㎡ |
| 연면적 | 17,976.43㎡ |
| 규모 | 지하 5 층/지상 18 층 |
| 구조 | RC조+벽식 |
| 건축주 | 더지젤 |
| 조형물 | |
| 작품크기 | |
| 가격 |